Tutte le attività
- Nell'ultima ora
-
Linea Frigo / Monosplit con RCBO Riarmo automatico Tipo A a monte seguito di RCBO Tipo F a valle: sarebbe a norma??
jpredeu ha risposto a jpredeu alla discussione in Quadri elettrici civili e terziario
La ringrazio per la Sua risposta e mi scusi per il ritardo della mia. Se ho capito bene, di solito due differenziali entrambe sulla stessa linea è qualcosa da evitare... Almeno è cosi che capisco la Sua risposta perche per il momento tutti e tre (frigo + 2 Clima) funzionano senza problema con solo un MTD C16 Tipo F (30mA 4,5kA) a monte della stessa linea condivisa. Vero? La ringrazio ancora! -
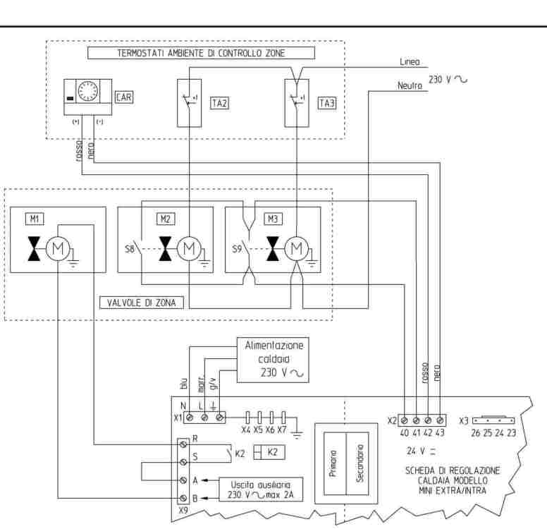
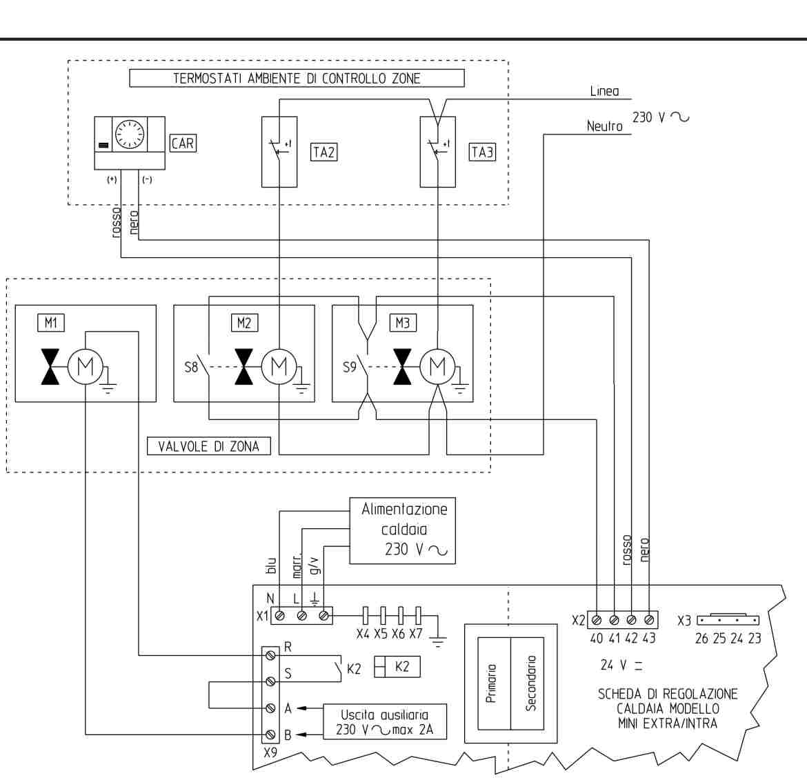
Immergas Intra Extra 20, CAR V1, TADO X
Stefano Dalmo ha risposto a Maups alla discussione in Guasti/Problemi Riscaldamento
Questo è lo schema della tua caldaia . Il 40 e 41 non ha ponte , ma va collegato ai contatti del tado . Come riferimento in scheda , altre zone . Dopo la “prima “ che non c’è visto che la dovrebbe comandare il car . -
Problema Lavatrice Rex Electrolux re6120 xc
borgo77 ha risposto a contelao alla discussione in Lavatrici - Asciugabiancheria
ciao controlla innanzitutto perchè non carica l'acqua, togli il tubo e pulisci il filtrino -
Immergas Intra Extra 20, CAR V1, TADO X
Stefano Dalmo ha risposto a Maups alla discussione in Guasti/Problemi Riscaldamento
Il tuo car va portato fuori , tanto servirà solo per settare la caldaia , se vuoi mettere il tado in casa direttamente sulla caldaia . per questo ti ho consigliato di mettere un interruttore Tra 40 e 41 prima di fare spese . ovviamente dopo aver modificato i parametri . Che ti ho postato . -
Mancato riavvio della caldaia dopo mancanza di corrente
Stefano Dalmo ha risposto a Framag alla discussione in Guasti/Problemi Riscaldamento
Bhe lo immaginavo. facci sapere come va a finire -
robertosh ha iniziato a seguire estrazione perno ammortizzatore smeg lbw508cit e Sostituzione ammortizzatori lavatrice SMEG LBW 362
- Oggi
-
caldaia ferroli ne fluss anno 1994
PINZAT ha inserito una discussione in Guasti/Problemi Riscaldamento
Ciao , possiedo una vecchia caldaia ferroli fluss in una casa in montagna usata solamente 3/4 volte all'anno . Avaria prelevando acqua dai sanitari oppure riscaldamento il bruciatore non parte e quindi senza acqua calda. Al prelievo si innesca la ventola ma non si sente l'innesco del rele' sulla scheda, comandato dal presostato aria fumi , ho controllato il tubicino trasparente.., l'ho anche sostituito ma nulla Ovviamente se faccio il corto sul contatto della scheda il bruciatore parte...ho soffiato nel tubicino e il bruciatore parte , ho controllato il presostato e per scrupolo l'ho sostutito : Pressostato Aria HUBA 43-8 Pa ...mi pare che manchi la depressione per far azionare il pressostato potrebbe esse la canna fumaria intasata ? Ringrazio anticipatamente per le informazioni. Grazie Allego foto. -
Sostituzione temporizzatore Legrand Rex600
Zippo978 ha risposto a Zippo978 alla discussione in Quadri elettrici civili e terziario
Alla fine ho optato per il Rex600Plus, scrivo perchè a qualcuno potrebbe servire. Il rex600Plus è perfettamente compatibile con il vecchio modello Rex600, basta mettere i cavi dal vecchio al nuovo nello stesso ordine. Grazie a tutti per l' aiuto ed i consigli. -
Rowenta DG8561 non esce vapore
Stefano Dalmo ha risposto a tistac alla discussione in Forni - Microonde - Cucine
Se la sigla è leggibile sul davanti . Puoi cercare di sostituirlo . Ma Andrebbe verificato il tutto . prima di tutto per vedere dove fa capo quel transistor . -
Stefano Dalmo ha iniziato a seguire Problema lampadina forno REX FMS 041 X - electrolux
-
Problema lampadina forno REX FMS 041 X - electrolux
Stefano Dalmo ha risposto a BEnrico7 alla discussione in Forni - Microonde - Cucine
Bhe , la prima cosa è vedere se arriva tensione sui terminali . dopo aver girato il commutatore . o magari aprendo già trovi il problema , a vista . O magari guarda bene la piastrina di fondo , se è arrugginita O ha bisogno di essere tirata in avanti , guardando da dentro al portalampada -
Aeg t59800-asciuga poco
DarioRFI ha risposto a DarioRFI alla discussione in Lavatrici - Asciugabiancheria
Una pdc scarica non dovrebbe generare poco calore? La biancheria è ben calda...la condensazione c'è. .. e poi perché dovrebbe terminare il ciclo se non raggiunge il grado di umidità desiderato? -
F80SG Btidin riarmo automatico
dario6 ha inserito una discussione in Scatti intempestivi dei differenziali
Ho installato un SALVAVITA STOP&GO standard F80SG Btidin riarmo automatico accoppiato con un interruttore magnetotermico differenzialeGC8813AC25 Btidin45 1P+N - 4,5kA - Idn=0,03A tipo AC - 2 moduli DIN - 230V - In=25A. Provato e verificato il funzionamento. Successivamente, a seguito di un problema con un apparecchiatura a valle che proteggeva (probabile corto o dispersione), non ha più funzionato il riarmo automatico. Ho disinstallato l'apparecchiatura problematica, ma il problema permane. Il F80SG in automatico prova a fa salire l'interruttore magnetotermico differenziale ma non ce la fa. Si deve riarmare manualmente. Ho effettuato più prove. Il SALVAVITA STOP&GO è protetto dai Cortocircuiti? -
BEnrico7 ha iniziato a seguire Problema lampadina forno REX FMS 041 X - electrolux
-
Problema lampadina forno REX FMS 041 X - electrolux
BEnrico7 ha inserito una discussione in Forni - Microonde - Cucine
Ciao a tutti. Ho un problema con la lampadina del forno REX FMS 041 X - electrolux. All'inizio pensavo che fosse bruciata, e così era quando ho aperto il bulbo di vetro e svitato la vecchia lampadina, ma quando sono andato a sostituirla con la nuova questa non si accende più. Ho provato a muoverla un pò sperando in un falso contatto ma non dà cenni di vita. Penso che non mi rimanga altro che smontare il forno e agire da dietro, magari è il porta lampadina che è andato, ma prima di farlo vorrei sentire la vostra e cosa mi consigliate di fare dopo che l'ho smontato. Grazie. -
Rowenta DG8561 non esce vapore
fogliluc ha risposto a tistac alla discussione in Forni - Microonde - Cucine
Io ho un altro problema e la scheda mi pare uguale ... quando l ho collegato alla corrente ha fatto una vampate e il cavo di alimentazione e saltato circa a metà. Ho sostituito il cavo ma non ho risolto ... poi ho smontato e ho visto che il componente e bruciato ... secondo voi è rimediabile ? -
Sostituire umet 1204/d006
Roberto Garoscio ha risposto a Aldo 85 alla discussione in Citofoni, videocitofoni e intercomunicanti
Basta chiedere qui. -
LG 28MT42VF-PZ-2 righe verticali
MARCHIGNO ha risposto a MARCHIGNO alla discussione in LG - Goldstar
Ok grazie,almeno so' qual'e' il problema. -
Roberto Garoscio ha iniziato a seguire Sostituire umet 1204/d006
-
Sostituire umet 1204/d006
Roberto Garoscio ha risposto a Aldo 85 alla discussione in Citofoni, videocitofoni e intercomunicanti
La staffa 1740/955 non è compatibile con il cablaggio coassiale ma è per i video a 5 fili, non puoi utilizzarla, devi prendere la 1740/90. -
Daniele Pin ha iniziato a seguire Ariston Microex con testine vimar
-
Ariston Microex con testine vimar
Daniele Pin ha inserito una discussione in Componenti Riscaldamento
Salve a tutti, ho installato le testine vimar (quelle digitali) su 8 caloriferi in ghisa bitubo.Ho scelto vimar solo per integrarle nella domotica di casa che gia avevo. La caldaia è una Ariston, vecchiotta, 18 anni credo, sul manuale riporta che può essere utilizzata con termostatiche ed è dotata di bypass. Con le testine ho creato un gruppo , collegato ad un relè , che alla richiesta di calore da una qualsiasi, chiude il contatto dedicato (morsetto M2 contatto 1 e 2) e attiva la caldaia. succede però questo:quando la temperatura é quasi arrivata al set Point da me impostato, e magari una sola o due testine richiedono ancora calore, la caldaia mi sembra faccia solo girare l’acqua, infatti anche il rumore che fa di solito diminuisce, sembra quasi spenta con la conseguenza che funziona perennemente senza mai far arrivare al set Point le ultime termostatiche. il clima manager Ariston che funziona anche da termostato, l’ho impostato in maniera tale da escludere la lettura della temperatura interna,(parametro P0=b0)quindi mi sembra di aver capito che si regola solo con la sonda esterna. É normale che faccia così? -
Beko lavastoviglie DVS06024S problema
Stefano Dalmo ha risposto a nonva alla discussione in Lavastoviglie
E quando non ti compare lo cancelli manualmente . -
Stefano Dalmo ha iniziato a seguire Sostituzione termostato IMIT TA2 con TADO
-
Sostituzione termostato IMIT TA2 con TADO
Stefano Dalmo ha risposto a pialla alla discussione in Componenti Riscaldamento
Allora . il verde ed il rosso li puoi escludere . alimentano solo la spia . Se il verde collegato sulla spia è collegato in parallelo ad un filo giallo /o bianco , non si definisce , sul morsetto 2 , lo puoi eliminare del tutto . quello che neanche si vede bene sono i cavi sul n1 , c’è collegato un filo viola soltanto o pure un nero insieme .? E la domanda più importante è se i fili collegati stanno solo su 1 e 2 con 3 libero . La caldaia la mette in moto ? per capire se il nero che vedo libero , poteva stare sul 3 . -
dario6 ha aderito alla comunità
-
brunorusa75 ha aderito alla comunità
-
Aldo 85 ha iniziato a seguire Sostituire umet 1204/d006
-
Sostituire umet 1204/d006
Aldo 85 ha inserito una discussione in Citofoni, videocitofoni e intercomunicanti
Salve, Vivo in un condominio di 8 appartamenti degli anni 90, provvisto di video citofono b/n, sono presenti 2 tasti per l'apertura del cancello esterno e del portone più interno. All'estero del palazzo è presente una sola pulsantiera con telecamera. Vorrei sostituire il mio citofono urmet 1204/d006. Ho letto su vari forum che il citofono urmet 1740/40 cn piastra 1740/955 potrebbe fare al caso mio, quindi nè ho acquistato uno. Ma ora che Vorrei fare la sostituzione, i sorgono vari dubbi: Esiste un sito per verificare la compatibilità tra i vari modelli urmet? Il 1204 è in b/n, mentre il 1740 è a colori, è comunque compatibile? Durante la sostituzione, gli altri condominio avranno interruzioni o mal funzionamento? Ci sono operazioni a cui occorre dare massima attenzione per non compromettere il sistema condominiale? Allego foto delle due piastre, riuscireste ad indicarmi come ricablare dalla vecchia alla nuova? Grazie mille -
ams1117 adj 2248
Menotti12 ha risposto a Menotti12 alla discussione in Componenti elettronici ed equivalenze
ok grazie. -
Lavatrice Ariston ECO9L1091 lava e risciacqua con poca acqua
Ganimede77 ha risposto a ciddone alla discussione in Lavatrici - Asciugabiancheria
Con qualsiasi programma? Anche il delicati? -
Valvola a tre vie Vaillant vcw 242 eh
Il capitano ha risposto a Il capitano alla discussione in Componenti Riscaldamento
Grazie come sempre scusi il ritardo -
ALLUMY ha iniziato a seguire ams1117 adj 2248
-
ams1117 adj 2248
ALLUMY ha risposto a Menotti12 alla discussione in Componenti elettronici ed equivalenze
Ld1117 o anche Lm1117. Sempre un 1117 è. Occhio al package 😉 -
Sostituzione Hoover vhds 609 .... cerco sostituta altrettanto valida... bosch, lg oppure?
Ganimede77 ha risposto a Zio_paperone alla discussione in Lavatrici - Asciugabiancheria
Allora io andrei di ASKO, modello base. Una volta provata, difficile rinunciare. Per Mièle è presto, sono relativamente recenti. Bosch, io direi come quelli delle apribili .
