Vai al contenuto

Messaggi consigliati

ANDREATHEKING
Inserito:

Ciao a tutti, ho bisogno di un vostro grande aiuto per il mio citofono (datato) di casa.
Un unica unità esterna con due campanelli funzionanti (io e mia mamma). Due citofoni interni con apripista e apricancello (in contemporanea) funzionanti.
Quello che non va sono i microfoni/altoparlanti sia esterno che ai piani nelle due direzioni.
Ho aperto l'unità esterna ed ho trovato fili scollegati e/o spezzati.... e non so come erano collegati per vedere se funziona.
Come posso fare?.... Non sn elettricista, come era mio papà che non c'è più da 4anni che saprebbe come fare, ma mi diletto. Aiutatemi.

IMG_20220320_171612.jpg

IMG20220320170843.jpg

IMG_20220320_154143.jpg

IMG20220320170813.jpg

IMG20220320154625.jpg

IMG20220320161038.jpg

IMG_20220320_163300.jpg

IMG20220320154632.jpg

Inserita: (modificato)

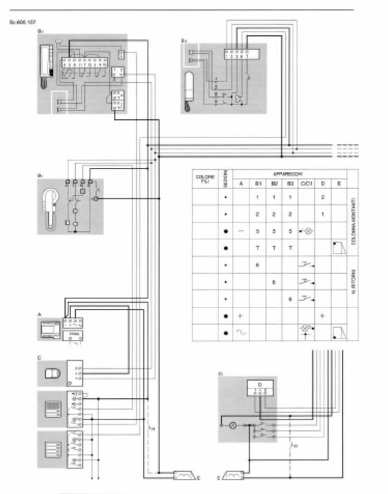
Devi fare riferimento a questo schema:

Se il file risulta poco leggibile, scaricalo da quì,

 

Terraneo.jpg

Modificato: da Ivan Botta
ANDREATHEKING
Inserita:

Grazie Ivan del consiglio, però io devo andare coi colori e numeri non essendo elettricista...

Ho 4 fili colorati staccati e nel microfono dell'unità esterna 5 attacchi (3,1+2,4).

Inserita:

La procedura se fai un pò di attenzione non è complicata stacca tutti i collegamenti da posto esterno posto interno e alimentatore avrai un punto dove i cavi dei due posti interni si giuntano con gli altri cercalo e staccalo una volta che hai tutto ben chiaro prendi un colore e con lo schema che ti ha dato Ivan inizi a collegare seguendo proprio i fili dello schema e arrivando ad ogni morsetto indicato finito un ramo prendi un altro colore ...e così via

Crea un account o accedi per commentare

Devi essere un utente per poter lasciare un commento

Crea un account

Registrati per un nuovo account nella nostra comunità. è facile!

Registra un nuovo account

Accedi

Hai già un account? Accedi qui.

Accedi ora
×
×
  • Crea nuovo/a...