Vai al contenuto
PLC Forum


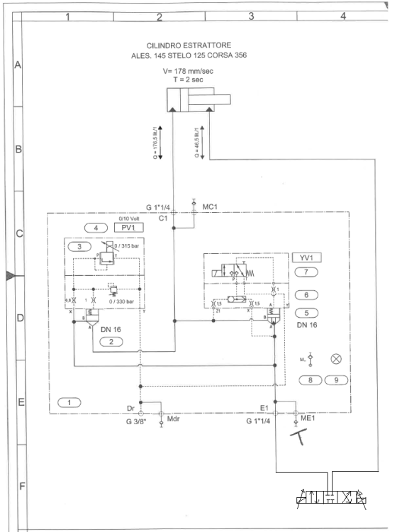
CIRCUITO CILINDRO ESTRATTORE PRESSA


Messaggi consigliati

Inserito:

Buonasera a voi tutti appassionati ed esperti di olio in pressione :)

 

Chi mi aiuta a capire la logica di questo sistema, pura informazione e condivisione di passione. ?

 

Partendo da due concetti base che penso siano corretti:

 

CARTUCCIA LOGICA 2 Rap 1:1

L'olio non passa mai da B->A ma solo da A->B

 

CARTUCCIA LOGICA 5 Rap 1:1.1 

L'olio se non ho nessun pilotaggio passa

da A->B libero

da B->A con trafilamento 

 

Chi mi aiuta a capire la logica di questo circuito nel dettaglio ?

 

Grazie della vostra disponibilià.

 

 

 

 

Immagine1.thumb.png.aee0ac26ea60485227a7affc4434e799.png

 

 


Crea un account o accedi per commentare

Devi essere un utente per poter lasciare un commento

Crea un account

Registrati per un nuovo account nella nostra comunità. è facile!

Registra un nuovo account

Accedi

Hai già un account? Accedi qui.

Accedi ora
×
×
  • Crea nuovo/a...