Vai al contenuto

Messaggi consigliati

Inserito:

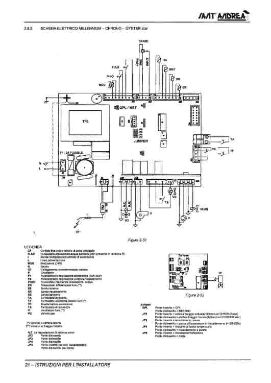
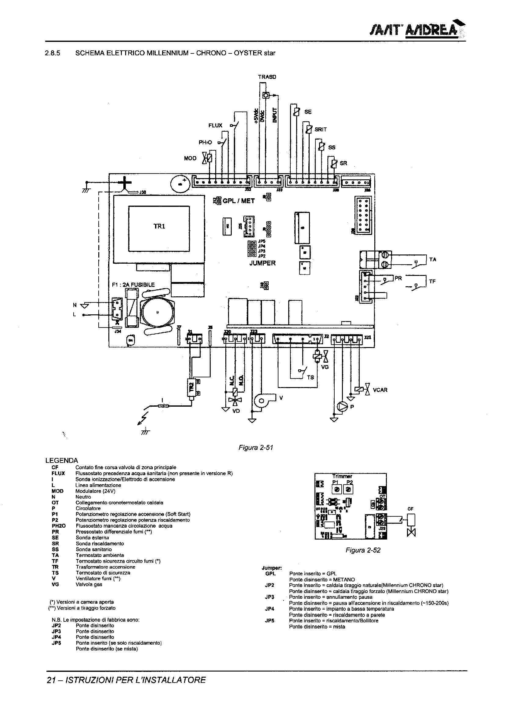
Buonasera

ho una caldaia sant'andrea modello chrono e volevo sapere se era possibile installare il termostato smarther 2 bticino, allego schema della caldaia 

Image_20251021_0002.jpg

Image_20251021_0001.jpg

Crea un account o accedi per commentare

Devi essere un utente per poter lasciare un commento

Crea un account

Registrati per un nuovo account nella nostra comunità. è facile!

Registra un nuovo account

Accedi

Hai già un account? Accedi qui.

Accedi ora
×
×
  • Crea nuovo/a...