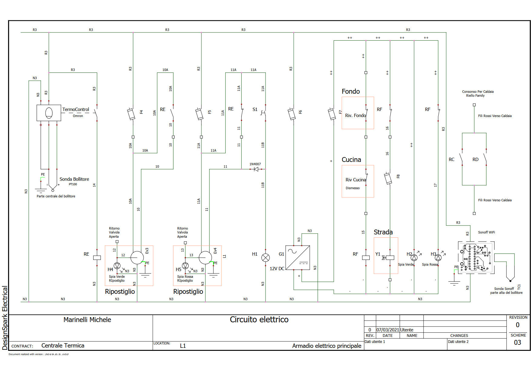
MichyDJ Inserito: 21 marzo 2021 Segnala Inserito: 21 marzo 2021 Buon pomeriggio ho un piccolo dilemma sul collegamento di una lampada spia di segnalazione su un interruttore Gewiss nel mio quadretto di alimentazione della centrale termica della mia abitazione. Allego lo schema elettrico per capire meglio il funzionamento e soprattutto spero sia comprensibile. La lampada H1 mi si accende correttamente quando chiudo l'interruttore S1 e poi a sua volta mi comanda l'apertura della valvola EV4 e fin qui tutto corretto. Normalmente è sempre in servizio (cioè aperta) la valvola EV3 e di conseguenza con il contatto normalmente chiuso di RE che si è aperto all'eccitazione di RE la lampada H1 è spenta e anche qui tutto corretto. Ho l'accensione debole di H1 e qui è il problema quando RE è diseccitato perchè non viene chiuso dal termocontroll che con la sua sonda controlla la temperatura nel bollitore solare sanitario. Vorrei che la lampada H1 si accenda solo quando chiudo l'interruttore S1 e non anche quando ho specificato nella riga sopra. Come posso fare? Non posso aggiungere contatti o relè causa quadro davvero pieno di componenti. Spero qualche anima pia mi aiuti anche con un componente elettronico casomai visto che sarebbe per me l'ideale. Grazie mille
hfdax Inserita: 21 marzo 2021 Segnala Inserita: 21 marzo 2021 Basta togliere il diodo 1N4007. H1 si accenderà solo alla chiusura di S1.
MichyDJ Inserita: 21 marzo 2021 Autore Segnala Inserita: 21 marzo 2021 Salve grazie della risposta ma non posso togliere il diodo perchè il selettore serve a bypassare il contatto di RE dunque io quando inserisco il selettore S1 devo anche pilotare il manuale l'apertura della valvola EV4 anche con la EV3 già aperta. Ecco perchè ho inserito il diodo, come potrei fare lasciando il funzionamento come da schema?
hfdax Inserita: 21 marzo 2021 Segnala Inserita: 21 marzo 2021 (modificato) 25 minuti fa, MichyDJ scrisse: non posso togliere il diodo allora devi aggiungere un contatto a S1 e usarlo per accendere H1. Modificato: 21 marzo 2021 da hfdax
MichyDJ Inserita: 21 marzo 2021 Autore Segnala Inserita: 21 marzo 2021 Non posso fare nemmeno quello perchè S1 è questo dispositivo: https://www.gewiss.com/ww/it/products/experience-catalogue/catalogs/series/product/domotics/system---domestic-range-modular-devices/GW20571 che è il classico interruttore Gewiss bianco da frutto 503 ma io l'ho montato con il telaietto per barra Omega. Altre soluzioni??
hfdax Inserita: 21 marzo 2021 Segnala Inserita: 21 marzo 2021 2 ore fa, MichyDJ scrisse: Non posso fare nemmeno quello perchè S1 è questo dispositivo E tu sostituiscilo con questo
MichyDJ Inserita: 21 marzo 2021 Autore Segnala Inserita: 21 marzo 2021 Ottima idea non ci avevo pensato davvero questo praticamente ha 2 contatti no separati giusta idea. Grazie mille. PS devo a questo punto togliere il diodo?? Però il problema è che non è luminoso il selettore giusto??? Se non è luminoso non ho fatto niente un altra volta
hfdax Inserita: 22 marzo 2021 Segnala Inserita: 22 marzo 2021 (modificato) 12 ore fa, MichyDJ scrisse: PS devo a questo punto togliere il diodo?? Scusami ma non capisco, hai detto che: 18 ore fa, MichyDJ scrisse: ...non posso togliere il diodo perchè il selettore serve a bypassare il contatto di RE dunque io quando inserisco il selettore S1 devo anche pilotare il manuale l'apertura della valvola EV4 anche con la EV3 già aperta. Ecco perchè ho inserito il diodo, come potrei fare lasciando il funzionamento come da schema? Il diodo è la ragione per cui quando S1 è aperto la spia funziona a mezza luce, ragion per cui ti ho suggerito di toglierlo. Se qeil diodo ha altre funzioni che ne giustificano la presenza perché mai dovresti toglierlo, perdendo quelle funzioni. Se la spia è alimentata da un contatto separato il diodo non influisce più sul suo funzionamento. 12 ore fa, MichyDJ scrisse: Però il problema è che non è luminoso il selettore giusto??? Giusto. Ma il fatto che la spia fosse inserita nel frutto è un dettaglio che finora mancava. Comunque non hai almeno mezzo modulo libero nel quadro per inserire una spia da quadro tipo questa? Ma toglimi una curiosità, perché hai usato un diodo invece di un semplice filo? Modificato: 22 marzo 2021 da hfdax
MichyDJ Inserita: 22 marzo 2021 Autore Segnala Inserita: 22 marzo 2021 Ciao ho visto la spia che mi hai detto ma vorrei usare ormai quello che ho comperato cioè l'interruttore a frutto luminoso con led integrato nel frutto. La funzione del diodo era x non fare accendere il led spia quando non prendevo il selettore S1. Diciamo che non doveva fare passare corrente invece la fa passare diciamo solo una semionda della corrente alternata e così si accende fievolmente. Diciamo che ci vorrebbe qualche altro componente elettronico ma non so cosa. Semmai ti puoi informare nella sezione elettronica qui del forum che ne dici???
hfdax Inserita: 23 marzo 2021 Segnala Inserita: 23 marzo 2021 10 ore fa, MichyDJ scrisse: Diciamo che ci vorrebbe qualche altro componente elettronico ma non so cosa. Nessun componente elettronico. Il problema è che con un solo contatto non si può fare. Anzi, con il diodo quando RE è eccitato e S1 è chiuso, anche EV4 riceve solo una semionda, pertanto non lavora in modo ottimale. È già bello che funzioni. La soluzione al tuo problema è una sola. Serve un contatto per accendere la spia e un contatto per EV4 che devono essere elettricamente separati e funzionalmente uniti. Voler usare un interruttore unipolare dove serve un bipolare inventandosi accrocchi elettronici è come voler usare un automobile invece di una basca per attraversare il fiume inventandosi espedienti vari per farla galleggiare. Se il problema è la mancanza di moduli liberi una soluzione può essere l'uso di un relé monostabile con due contatti NA. Con l'interruttore ecciti il relé. Un contatto del relé va all'EV4, l''altro alla spia. Il relè puoi lasciarlo appoggiato sul fondo del quadro.
MichyDJ Inserita: 30 marzo 2021 Autore Segnala Inserita: 30 marzo 2021 Alla fine mi tocca fare come hai detto tu se non ci sono diciamo soluzioni....ora valuto anche il posto o magari bucare il quadretto e mettere un led spia da quadro che non occupa posto diciamo in barra omega...mi serve sono l'interruttore bipolare della gewiss.
MichyDJ Inserita: 1 aprile 2021 Autore Segnala Inserita: 1 aprile 2021 il 23/3/2021 at 08:01 , hfdax scrisse: Nessun componente elettronico. Il problema è che con un solo contatto non si può fare. Anzi, con il diodo quando RE è eccitato e S1 è chiuso, anche EV4 riceve solo una semionda, pertanto non lavora in modo ottimale. È già bello che funzioni. La soluzione al tuo problema è una sola. Serve un contatto per accendere la spia e un contatto per EV4 che devono essere elettricamente separati e funzionalmente uniti. Voler usare un interruttore unipolare dove serve un bipolare inventandosi accrocchi elettronici è come voler usare un automobile invece di una basca per attraversare il fiume inventandosi espedienti vari per farla galleggiare. Se il problema è la mancanza di moduli liberi una soluzione può essere l'uso di un relé monostabile con due contatti NA. Con l'interruttore ecciti il relé. Un contatto del relé va all'EV4, l''altro alla spia. Il relè puoi lasciarlo appoggiato sul fondo del quadro. Ciao ho trovato della stessa serie che ho io Gewiss Bianca questo articolo mi dici se va bene per come avevi intenzione di fare te?? L'interruttore è luminoso e dicono che sia bipolare con 2 contatti NO mi puoi dire se va bene cosi provo a cercarlo qui dalle mie zone. https://www.gewiss.com/ww/it/products/experience-catalogue/catalogs/series/product/domotics/system---domestic-range-modular-devices/GW20504 Grazie mille
hfdax Inserita: 2 aprile 2021 Segnala Inserita: 2 aprile 2021 Va bene. E quando lo installi ricordati di togliere il diodo.
MichyDJ Inserita: 4 aprile 2021 Autore Segnala Inserita: 4 aprile 2021 Buona pasqua intanto ma pensando ti chiedo visto il link che ti ho mandato dell'interruttore ho guardato il modello e ci sono interruttori illuminabili e illuminato. Cosa vuole dire?? Io vorrei riutilizzare la mia lampada che ho nell'interruttore attuale mi dici quale dovrei prendere il codice preciso così lo passo al ricambiata di zona e vediamo se me lo trova e che non costi un'eresia!! Grazie mille e ancora auguri di Buona Pasqua!!!
hfdax Inserita: 5 aprile 2021 Segnala Inserita: 5 aprile 2021 Non saprei perché finora li ho usati sempre senza illuminazione ma immagino che quello adatto sia l'illuminabile.
Messaggi consigliati
Crea un account o accedi per commentare
Devi essere un utente per poter lasciare un commento
Crea un account
Registrati per un nuovo account nella nostra comunità. è facile!
Registra un nuovo accountAccedi
Hai già un account? Accedi qui.
Accedi ora