am0619 Inserito: 28 aprile 2022 Segnala Inserito: 28 aprile 2022 (modificato) Buongiorno, stiamo installando nella casa l'impianto a riscaldamento a pavimento, la casa unica è su 3 piani (soggiorno e cucina sotto e camere negli altri 2 piani) e per riscaldare le scale di collegamento/scaldasalviette in bagno mi hanno proposto di collegarli al circuito a bassa temperatura (mandata a 35 gradi). Per gli scaldasalviette stiamo valutando l'installazione di un modello misto in modo da usarli eventualmente in modalità elettrica, mentre per i termosifoni nelle scale (uno al piano terra e 2 nei due pianerottoli in mezzo alle rampe delle scale) vorrei capire se i termo a 35 gradi sono adeguati per avere 18-19 gradi, quale tipologia di termosifone sarebbe meglio mettere per sfruttare la bassa temperatura? Ho letto anche di radiatori come ulow-e2 o sofi fatti per ad hoc per le basse temperature (dove in caso di necessità si attiva una ventilazione per migliorare il riscaldamento), qualcuno ha esperienze queste tipologie? o ha prodotti simili da consigliarmi? grazie Modificato: 28 aprile 2022 da Simone Baldini
Alessio Menditto Inserita: 28 aprile 2022 Segnala Inserita: 28 aprile 2022 1 minuto fa, am0619 ha scritto: e per riscaldare le scale di collegamento/scaldasalviette in bagno mi hanno proposto di collegarli al circuito a bassa temperatura (mandata a 35 gradi). Sono sempre ammirato da come si tratti la fisica termodinamica da parte di chi dovrebbe padroneggiarla, cioè di alcuni tecnici, perché te la giro “per assurdo”: se bastasse mandare acqua a 35 gradi per scaldare, con evidente risparmio energetico!!!, per quale motivo quasi tutti i comuni mortali mandano acqua ai termosifoni a 60, 70 gradi altrimenti non si scaldano? Forse un complotto…
drn5 Inserita: 28 aprile 2022 Segnala Inserita: 28 aprile 2022 La temperatura dell'acqua determina l'energia che viene immessa nell'ambiente dal radiatore. Maggiore è la temperatura, maggiore è l'energia e quindi diciamo "scaldano di più". Poi quanta energia serve alla tua casa per raggiungere la temperatura che vuoi avere dipende da quanta ne disperdono i tuoi locali e da quanta ne generano i radiatori. Ci sono dei calcoli che si possono fare per capire tutto questo, se poi sei un tipo freddoloso si rivelano sbagliati. Non ci sono caloriferi che scaldano di più di altri, a parità di temperatura acqua dipende dalla superficie radiante. Quelli in alluminio si scaldano prima di quelli in ghisa, quelli in ghisa mantengono di più il calore quando la caldaia si spegne. I caloriferi miracolosi sono solo lucciole....
Simone Baldini Inserita: 28 aprile 2022 Segnala Inserita: 28 aprile 2022 Intanto bisogna considerare l'utilizzo che ne farai dei due pianerottoli, cioè solitamente se ne puo' fare a meno di riscaldarli proprio ancor di piu' se l'edificio è ben isolato. Per i radiatori che hai citato sono in sostanza dei ventilconvettori, hanno dentro delle ventole tipo PC, ovviamente innescano il moto convettivo meccanicamente dato che a 35°C il moto convettivo è molto limtato. Per scaldasalviette nei bagni, essendo comunque un di piu' ci stanno a bassa temperatura, in sostaza a 35°C comunque di ascuigano la salvietta e aiutano un filino a darti quel grado in piu'. In definitiva io eviterei di scaldare i pianerottoli dato che dobito li usi e metterei scaldasalviette a bassa temperatura senza resistenze elettriche, se proprio vuoi un qualcosa che scaldi anche fuori stagione allora l'aggiungerei la resistenza.
am0619 Inserita: 28 aprile 2022 Autore Segnala Inserita: 28 aprile 2022 31 minuti fa, Simone Baldini ha scritto: Intanto bisogna considerare l'utilizzo che ne farai dei due pianerottoli, cioè solitamente se ne puo' fare a meno di riscaldarli proprio ancor di piu' se l'edificio è ben isolato. Per i radiatori che hai citato sono in sostanza dei ventilconvettori, hanno dentro delle ventole tipo PC, ovviamente innescano il moto convettivo meccanicamente dato che a 35°C il moto convettivo è molto limtato. Per scaldasalviette nei bagni, essendo comunque un di piu' ci stanno a bassa temperatura, in sostaza a 35°C comunque di ascuigano la salvietta e aiutano un filino a darti quel grado in piu'. In definitiva io eviterei di scaldare i pianerottoli dato che dobito li usi e metterei scaldasalviette a bassa temperatura senza resistenze elettriche, se proprio vuoi un qualcosa che scaldi anche fuori stagione allora l'aggiungerei la resistenza. Grazie per la risposta, i pianerottoli di fatto servono solo come passaggio tra i piani, di fatto la casa è così: ingresso della casa su piccolo disimpegno di 4 mq senza riscaldamento a pavimento (anche qui stiamo valutando se mettere un radiatore a parete da far girare a bassa temperatura giusto per dare un filino di calore), da una porta a destra si entra nella zona con riscaldamento a pavimento (cucina soggiorno), mentre a sinistra c'è la rampa della scala, 10 gradini pianerottolo e altra rampa di scale fino al primo piano, li c'è una porta per l'ingresso alle camere con riscaldamento al piano 1. entrando nel piano 1, subito a destra trovo una porta che va al vano scale della mansarda, sempre fatta con circa 10gradini, pianerottolo e altri 10 gradini che portano alla piano mansarda, qui in cima non ci sono porte e si arriva al piano che ha il riscaldamento a pavimento. Con questa disposizione confermi quanto scritto sopra?
Simone Baldini Inserita: 28 aprile 2022 Segnala Inserita: 28 aprile 2022 se alleghi un disegno facciamo prima
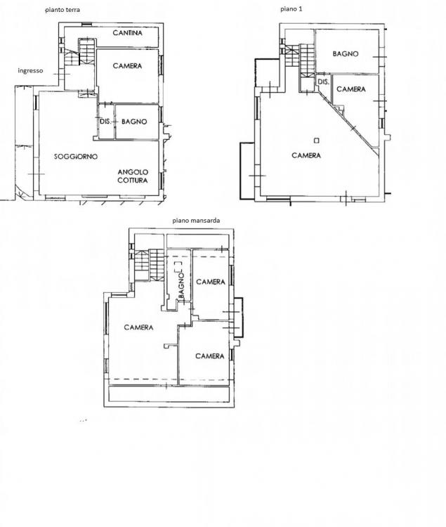
am0619 Inserita: 28 aprile 2022 Autore Segnala Inserita: 28 aprile 2022 25 minuti fa, Simone Baldini ha scritto: se alleghi un disegno facciamo prima Ecco il disegno, di fatto dove ci sono le stanze (camere, bagni, soggiorno, cucina( c'è il riscaldamento a pavimento, dove c'è l'ingresso e le scale no. grazie
Simone Baldini Inserita: 28 aprile 2022 Segnala Inserita: 28 aprile 2022 Io non metterei nulla di riscaldamento, se proprio uoi stemerare l'ambiente metti qualcosa solo al piano terra. Ma all'ingresso piano terra non riesci a fare il radiente a pavimento?
am0619 Inserita: 28 aprile 2022 Autore Segnala Inserita: 28 aprile 2022 47 minuti fa, Simone Baldini ha scritto: Io non metterei nulla di riscaldamento, se proprio uoi stemerare l'ambiente metti qualcosa solo al piano terra. Ma all'ingresso piano terra non riesci a fare il radiente a pavimento? Quella parte di pavimento è storica e molto particolare, e vorremmo lasciarla così. Al massimo potremmo mettere sulla parete opposta alla porta di ingresso, sempre lì nell'ingresso un termo in ghisa (di quelli che smontiamo dalla casa) magari un po grosso, 160x90 cm da far girare in bassa temperatura, giusto per stemperare un po l'ingresso, che dici?
Messaggi consigliati
Crea un account o accedi per commentare
Devi essere un utente per poter lasciare un commento
Crea un account
Registrati per un nuovo account nella nostra comunità. è facile!
Registra un nuovo accountAccedi
Hai già un account? Accedi qui.
Accedi ora