walter126 Inserita: 4 febbraio 2022 Autore Segnala Inserita: 4 febbraio 2022 Il 2/2/2022 alle 14:12 , DavidOne71 ha scritto: Non intendo idraulicamente, anche perché ho visto lo schema, ma elettricamente Ti aggiorno sulle prove che ho eseguito e forse ho trovato il pezzo guasto. Ho escluso fisicamente il differenziale staccando i fili dalla morsettiera e facendo il ponte nei morsetti 15 e 16 per dare continuità. Ho attivato la macchina e la temperatura è salita sui 45 gradi ma ha staccato nuovamente per FL "allarme flussostato". Magari è salita fino a 45 gradi perchè comunque stavo facendo delle prove quindi man mano la temperatura saliva. A questo punto l'allarme FL era un pò inspiegabile perchè sia flussostato che differenziale erano esclusi e il contatto era chiuso in continuità. Seguendo un pò i vari giri che fa la morsettiera sembrerebbe che il sensore che da l'impulso ...o la lettura ... per staccare sia la sonda termica del compressore....fissata sulla base del compressore tramite una fascetta lungo tutta la circonferenza. Effettivamente l'allarme FL viene programmato sul controller e si può scegliere tra l'allarme pressostato differenziale oppure l'allarme termico: pertant onella mia ignoraza in materia di chiller posso ipotizzare che il compressore stia sforzando all'aumentare della temperatura/pressione e vada in protezione termica il controller... Ora mi spiego il perchè il tecnico della Thermocold quando gli ho detto dell'allarme FL ha citato il compressore ... forse perhè lor odi default legano l'allarme FL al termico del compressore e non al differenziale....o meglio...escludendo flussostato e differenziale rimane solo il termico del compressore. Devo giusto controllare stasera se nella configurazione del P008 l'allarme è associato al termico. Sinceramente non so se vale la pena spendere e sostituire compressore ...la macchina è del 2006 e non vorrei che ora iniziano tutte le anomalie "di vecchiaia"
DavidOne71 Inserita: 4 febbraio 2022 Segnala Inserita: 4 febbraio 2022 Le solite cagate dei costruttori👹 15 minuti fa, walter126 ha scritto: .fissata sulla base del compressore tramite una fascetta lungo tutta la circonferenza. Questa dovrebbe essere la resistenza carter olio Fai delle foto
DavidOne71 Inserita: 4 febbraio 2022 Segnala Inserita: 4 febbraio 2022 Come ti dicevo per capire meglio sarebbe gradito lo schema elettrico
DavidOne71 Inserita: 4 febbraio 2022 Segnala Inserita: 4 febbraio 2022 a quale ID, ingresso digitale, è collegato il pressostato?
walter126 Inserita: 4 febbraio 2022 Autore Segnala Inserita: 4 febbraio 2022 5 minuti fa, DavidOne71 ha scritto: a quale ID, ingresso digitale, è collegato il pressostato? nel manuale l'allarme FL è su ingresso digitale ed è legato alla configurazione di P008: stasera verifico come è configurato. Ho ritagliato da una foto che avevo già indicando la fascetta metallica che contiene il sensore termico o qualcosa di simile. Gli schemi devo ancora scannerizzarli.
DavidOne71 Inserita: 4 febbraio 2022 Segnala Inserita: 4 febbraio 2022 Alcuni ingressi digitali sono programmabili. L'ID1 potrebbe essere programmato come FL ma anche come termico compressore ma anche come on off remoto ecc ecc. Vale anche per gli altri ID. Devi vedere il filo dov'è collegato sul controllore. Confermo che quella è la resistenza che scalda l'olio
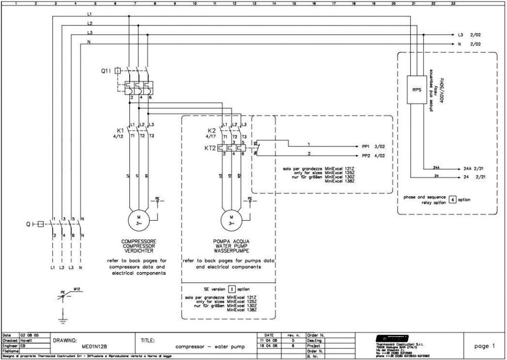
walter126 Inserita: 4 febbraio 2022 Autore Segnala Inserita: 4 febbraio 2022 37 minuti fa, DavidOne71 ha scritto: Alcuni ingressi digitali sono programmabili. L'ID1 potrebbe essere programmato come FL ma anche come termico compressore ma anche come on off remoto ecc ecc. Vale anche per gli altri ID. Devi vedere il filo dov'è collegato sul controllore. Confermo che quella è la resistenza che scalda l'olio Ho scritto alla thermacold e in due minuti mi hanno reinviato gli schemi che ti allego
DavidOne71 Inserita: 4 febbraio 2022 Segnala Inserita: 4 febbraio 2022 Che modello è il tuo chiller? Sotto l'ingresso ID1 c'è sia il pressostato sia il termico pompa, ma dipende dal modello
walter126 Inserita: 4 febbraio 2022 Autore Segnala Inserita: 4 febbraio 2022 7 minuti fa, DavidOne71 ha scritto: Che modello è il tuo chiller? Sotto l'ingresso ID1 c'è sia il pressostato sia il termico pompa, ma dipende dal modello sulla certificazione il modello è MINIEXCEL 116 ZH SE - R407c
DavidOne71 Inserita: 4 febbraio 2022 Segnala Inserita: 4 febbraio 2022 1 ora fa, DavidOne71 ha scritto: Sotto l'ingresso ID1 c'è sia il pressostato sia il termico pompa, ma dipende dal modello confermo Devi vedere cosa c'è collegato ai morsetti 21A e 22A
walter126 Inserita: 4 febbraio 2022 Autore Segnala Inserita: 4 febbraio 2022 5 ore fa, DavidOne71 ha scritto: confermo Devi vedere cosa c'è collegato ai morsetti 21A e 22A i morsetti 21a e 22a vanno al circolatore interno del chiller: ho staccato la fase al circolatore interno del xhiller e attivato la macchina...non da l allarme FL....tuttavia la pressione nel manometro dell acwua e salita a oltre 3 bar...quindi ho preferito staccare. I morsetti nei fili 21a e 22a li ho lasciati connessi oerche credo sia il termico del motore del circolatore interno al chiller. Stava funxionando solo il circolatore eaterno. Come maj sale cosi tanto la pressione?
DavidOne71 Inserita: 4 febbraio 2022 Segnala Inserita: 4 febbraio 2022 28 minuti fa, walter126 ha scritto: i morsetti 21a e 22a vanno al circolatore interno del chiller: ho staccato la fase al circolatore interno del xhiller e attivato la macchina...non da l allarme FL ponticella il 21a e il 22a e ripristina la linea del circolatore e il pressostato differenziale
walter126 Inserita: 5 febbraio 2022 Autore Segnala Inserita: 5 febbraio 2022 11 ore fa, DavidOne71 ha scritto: ponticella il 21a e il 22a e ripristina la linea del circolatore e il pressostato differenziale Caro Davide non so come ringraziarti .... alla fine il guasto era proprio il circolatore interno del chiller (a questo punto la protezione termica) Invece di ponticellare il 21a e 22a ho staccato direttamente l'alimentazione al circolatore...e la macchina funziona benissimo. Chiaramente ho il circolatore esterno che funziona beissimo: con calma vedrò come sostituire il circolatore interno. Per quanto riguarda la pressione alta c'era sicuramente una bolla d'aria nel circuito del chiller/serbatoio : ho spurgato e riempito di nuovo...e tutto è ok a 1,7 bar. Se mai capiti in Sardegna fammelo sapere 🙂
DavidOne71 Inserita: 5 febbraio 2022 Segnala Inserita: 5 febbraio 2022 4 ore fa, walter126 ha scritto: Se mai capiti in Sardegna fammelo sapere 🙂 sarà fatto😃 Ps. Devo dire la verità, è stata dura!
Messaggi consigliati
Crea un account o accedi per commentare
Devi essere un utente per poter lasciare un commento
Crea un account
Registrati per un nuovo account nella nostra comunità. è facile!
Registra un nuovo accountAccedi
Hai già un account? Accedi qui.
Accedi ora